Braun Immobilien Rügen GmbH
Strandpromenade 42
18609 Ostseebad Binz

Kontakt aufnehmen
Schlafzimmer

320.000 € • 38.7 m² • Breege Mit Meerblick: Bezaubernde Ferienwohnung an Rügens Traumstrand in Juliusruh

Mit Meerblick: Bezaubernde Ferienwohnung an Rügens Traumstrand in Juliusruh

Objektbeschreibung

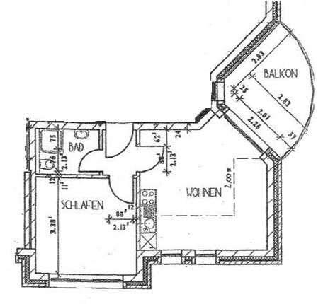
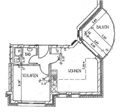
In absoluter 1-A-Lage des beliebten Ostseebades Juliusruh präsentiert sich diese charmante 2-Zimmer-Ferienwohnung in ruhiger und zugleich äußerst begehrter Umgebung. Die Wohnung befindet sich im 3. Obergeschoss eines gepflegten Mehrfamilienhauses und bietet auf ca. 38,7 m² Wohnfläche eine durchdachte Raumaufteilung mit angenehmem Wohnambiente – ideal sowohl für die Ferienvermietung als auch für die private Eigennutzung.
Der einladende Wohnbereich überzeugt durch seine freundliche Atmosphäre und bildet gemeinsam mit der integrierten Einbauküche das Herzstück der Wohnung. Das separat gelegene Schlafzimmer bietet eine ruhige Rückzugsmöglichkeit mit hohem Erholungswert. Das zeitlos geflieste Badezimmer ist funktional ausgestattet. Insgesamt befindet sich die Wohnung in einem sehr gepflegten Zustand und unterstreicht mit ihrer harmonischen Ausstattung den Charakter einer gemütlichen und hochwertigen Ferienimmobilie.
Ein besonderes Highlight ist der eigene Strandzugang, der den feinsandigen Ostseestrand in wenigen Schritten erreichbar macht. Zusätzlich gehört ein eigener Strandkorb zur Wohnung – ein exklusiver Mehrwert, der sowohl bei Eigennutzern als auch bei Feriengästen äußerst geschätzt wird und den Urlaubskomfort deutlich erhöht.
Abgerundet wird das Angebot durch einen eigenen Kellerraum mit zusätzlichem Stauraum sowie einen komfortablen Außenstellplatz direkt an der Wohnanlage. Der moderne Wellnessbereich mit Sauna steht den Bewohnern gemeinschaftlich zur Verfügung und steigert den Erholungs- und Freizeitwert der Immobilie erheblich – ein klarer Vorteil gegenüber vielen vergleichbaren Objekten in der Region.
Die Beheizung erfolgt über eine Gas-Zentralheizung. Zudem ist der Ausbau von Glasfaser vorgesehen bzw. bereits vorbereitet und bietet damit eine zukunftssichere digitale Infrastruktur. Die Wohnung ist derzeit vermietet an Feriengäste. Mit durchschnittlichen Brutto-Einnahmen von ca. 15.000€ stellt diese Immobilie eine attraktive und solide Kapitalanlage in einer gefragten Ferienregion dar.

Details

Objektnr. extern:
ETW056
Stand vom:
05.02.2026
Nutzungsart:
Wohnen
Vermarktungsart:
Kauf
Objektart:
Wohnung
Baujahr:
2004
Straße:
Am Waldwinkel 6 a
Ort:
18556 Breege
Wohnfläche:
38,70 m²
Etage:
3
Anzahl Zimmer:
2
Anzahl Schlafzimmer:
1
Anzahl Badezimmer:
1
Anzahl Stellplätze:
1
Ausstattungskategorie:
Standard
Ausstattung:
Bad mit Badewanne Gas Einbauküche Sauna Stellplatz: Freiplatz Unterkellert/Keller

Energiepass

Art des Energieausweises:
Verbrauchsausweis
Gültig bis:
27.08.2031
Ausstelldatum:
2021-08-28
Wertklasse:
C
Befeuerung:
Primärer Energieträger:
Gas
Energieverbrauchkennwert:
79.99 kWh/(m²*a)

Preise

Kaufpreis:
320.000,00 €
Hausgeld:
262,00 €
Provisionspflichtig:
ja
Provision:
3,57 % inkl. MwSt.

Lage

Das Ostseebad Juliusruh liegt direkt an der Ostseeküste und besticht durch atemberaubende Ausblicke auf die mecklenburgische Bucht. Die Umgebung ist von weitläufigen Sandstränden, Dünenlandschaften und einem entspannten, maritimen Flair geprägt.
Cafés, Restaurants, Einkaufsmöglichkeiten und Freizeiteinrichtungen sind fußläufig oder in wenigen Minuten mit dem Fahrrad erreichbar. Gleichzeitig profitieren Bewohner und Urlauber von der unmittelbaren Nähe zur Natur: Rad- und Wanderwege sowie Naturschutzgebiete laden zu Erholung und Aktivitäten an der frischen Luft ein.
Die Anbindung an die Inselhauptorte ist unkompliziert, sodass sowohl touristische Ausflüge als auch alltägliche Wege bequem gestaltet werden können. Die Lage verbindet somit Ruhe und Erholung mit guter Erreichbarkeit und macht Juliusruh zu einem attraktiven Standort auf der Insel Rügen.

Ausstattung

- Separates Schlafzimmer
- Einbauküche
- Balkon mit Ostseeblick
- Gemeinschaftliche Sauna
- PKW-Außenstellplatz am Haus
- Mobiliar ist im Kaufpreis inbegriffen

Sonstiges

Die von Braun Immobilien Rügen GmbH gemachten Angaben über die Immobilie beruhen auf den ihr erteilten Informationen des jeweiligen Eigentümers.

Eine Haftung für die Richtigkeit und Vollständigkeit der Angaben kann Braun Immobilien Rügen GmbH daher nicht übernehmen.

Mario Buch

Mario Buch
geschäftsführender Gesellschafter

0160 94149422 info@ruegen-immobilien-braun.de

Exposé anfordern

Newsletter abonnieren

Immer auf dem Laufenden bleiben - mit unserem Newsletter.