300.000 € • 134 m² • Poseritz Einfamilienhaus im Bungalowstil mit repräsentativem Garten
Einfamilienhaus im Bungalowstil mit repräsentativem Garten
Objektbeschreibung
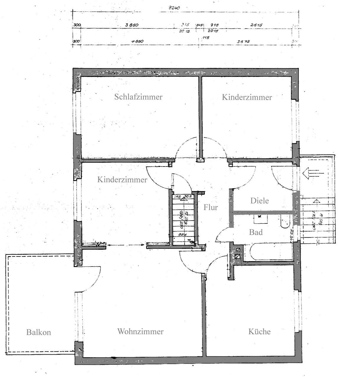
Der gut geschnittene Grundriss bietet vier Wohn- und Schlafräume auf einer Ebene. Vom Wohnzimmer aus eröffnet sich der Zugang zum sonnigen Westbalkon mit Blick in den traumhaft idyllischen Garten und unverbautem Blick ins Grüne. Eine separate Küche sowie ein großzügiges Badezimmer mit Badewanne und Tageslicht runden das Raumangebot im oberen Geschoss ab. Im Untergeschoss befindet sich zusätzlich ein vielseitig nutzbarer Hobbyraum sowie ein Badezimmer mit Dusche und Tageslicht.
Ein besonderes Highlight ist das herrlich eingewachsene Grundstück mit altem Obstbaumbestand.
Auf ca. 1.237 m² Grundstücksfläche findet sich hier nicht nur viel Platz zur Entfaltung, sondern auch ein einmaliges Gefühl von Naturverbundenheit und Privatsphäre. Umgeben von herrlichen Obstbäumen genießen Sie absolute Ruhe – ideal für Familien, Ruhesuchende oder Naturliebhaber, die das Leben im Grünen schätzen.
Details
- Objektnr. extern:
- EFH2036
- Stand vom:
- 17.07.2025
- Nutzungsart:
- Wohnen
- Vermarktungsart:
- Kauf
- Objektart:
- Haus
- Baujahr:
- 1980
- Straße:
- Rosenweg 16
- Ort:
- 18574 Poseritz
- Wohnfläche:
- 134,00 m²
- Grundstücksfläche:
- 1.217,00 m²
- Anzahl Zimmer:
- 5
- Anzahl Badezimmer:
- 2
- Zustand:
- Gepflegt
- Ausstattung:
- Bad mit Dusche Bad mit Badewanne Oel Gartennutzung Stellplatz: Freiplatz Stellplatz: Garage Unterkellert/Keller
Energiepass
- Art des Energieausweises:
- Verbrauchsausweis
- Gültig bis:
- 15.07.2035
- Ausstelldatum:
- 2025-07-16
- Wertklasse:
- F
- Befeuerung:
- Primärer Energieträger:
- Öl
- Energieverbrauchkennwert:
- 173,59 kWh/(m²*a)
Preise
- Kaufpreis:
- 300.000,00 €
- Provisionspflichtig:
- ja
- Provision:
- 3,57 % inkl. MwSt.
Lage
Poseritz entwickelt sich zunehmend zu einem beliebten Wohnort mit idyllischem Dorfcharakter. Diverse Annehmlichkeiten des täglichen Bedarfs wie eine Kindertagesstätte, Friseursalon, Gastronomie sowie medizinische Einrichtungen befinden sich unmittelbar im Ort. Weitere Versorgungsmöglichkeiten, Schulen und Einkaufsmöglichkeiten sind schnell in den umliegenden Ortschaften oder direkt in Stralsund erreichbar.
Trotz der guten infrastrukturellen Anbindung – unter anderem über die B96 und den öffentlichen Nahverkehr – liegt das Grundstück wunderbar ruhig und naturnah. Umgeben von altem Baumbestand und viel Grün genießen Sie hier ein hohes Maß an Lebensqualität und Entschleunigung. Die Umgebung eignet sich ideal für Spaziergänge und Radtouren.
Insgesamt bietet Poseritz die perfekte Kombination aus ländlicher Idylle, wachsender Gemeinschaft und städtischer Nähe – ein Wohnort mit viel Potenzial.
Ausstattung
Sonstiges
Wohn- / Nutzfläche gesamt: ca. 134 m²
Die von Braun Immobilien Rügen GmbH gemachten Angaben über die Immobilie beruhen auf den ihr erteilten Informationen des jeweiligen Eigentümers.
Eine Haftung für die Richtigkeit und Vollständigkeit der Angaben kann Braun Immobilien Rügen GmbH daher nicht übernehmen.

Mario Buch
geschäftsführender Gesellschafter
0160 94149422
info@ruegen-immobilien-braun.de
Newsletter abonnieren
Immer auf dem Laufenden bleiben - mit unserem Newsletter.